KASERNE HAUPTBAU, BASEL, KULTUR- UND KREATIVZENTRUM

1452
Focketyn del Rio Studio GmbH
Culture et vie sociale
Transformation
Concours
Concours ouvert

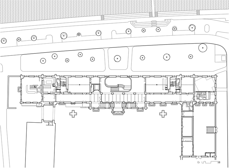
ALLE UNTER EINEM DACH: KULTUR- UND KREATIVZENTRUM KASERNE.Der Umbau des bestehenden Hauptgebäudes der Kaserne zu einem neuen Kulturzentrum ist zu einem Modell für zirkuläre Architektur und Re-Use geworden: Das vor 150 Jahren als Kaserne errichtete Gebäude wurde zu einem neuen öffentlichen Knotenpunkt im Herzen von Basel. Eine zentrale Hauptverbindung bildet ein dreigeschossiger, überdachter Plaza, der einen neuen öffentlichen Raum für das Quartier und die Bewohner der Stadt schafft. Durch präzise und ausgewogene Eingriffe wurde das Gebäude so transformiert, dass auf 9.000 m² ein vielfältiger Nutzungsmix entstehen konnte (Veranstaltungsräume, Proberäume, Projekträume, Café, Wohnstudios, Moschee usw.). Gleichzeitig wurde darauf geachtet, viel von der bestehenden Bausubstanz zu erhalten, wodurch Alt und Neu zu einem harmonischen Ganzen verschmelzen. Dieser differenzierte Umgang mit dem Bestand zeigt sich auch in der vielseitigen und durchdachten Verwendung von Beton.

Copyright des images: Adrià Goula

Réflexions sur la proposition de projet

Utilisation efficace du béton
Im Projekt wird Beton in verschiedenen Formen und Funktionen eingesetzt, wobei ein differenzierter Umgang damit gepflegt wird. Einerseits wird er präzise an den Stellen und Orten verwendet, an denen statische, denkmalpflegerische und gestalterische Anforderungen vereint werden können. Dabei werden auch viele der möglichen Eigenschaften des Materials spezifisch gestalterisch ausgeschöpft, wie Form, Farbe und Textur.
Innovations spécifiques aux matériaux
Im Projekt wird Beton in vielen seiner Möglichkeiten genutzt – von vorgefertigten statischen Elementen bis hin zu geschliffenen Bodenoberflächen. Vom grauen, glatten Beton bis hin zur eingefärbten Bretterschalung. Dabei steht die Ausschöpfung der Beton-Eigenschaften im Dialog mit dem Bestand im Vordergrund. Besonders innovativ ist die Haltung zum Material und dessen vielfältigen Einsatzmöglichkeiten
Approches interdisciplinaires
Für die Vielfalt an statischen Lösungen und deren spezifische Entwicklung war eine enge Zusammenarbeit mit den Bauingenieuren notwendig. Dazu kam die Zusammenarbeit bei Räumen wie dem Proberaum und dem Veranstaltungsraum, die Anforderungen der Statik, Akustik und des Bühnenbaus vereinen mussten. Das Ergebnis konnte alle Anforderungen sowie den architektonischen Ausdruck im Einklang bringen
Conception adaptée au site
An den Stellen, an denen neue Öffnungen entstehen oder bestehende Öffnungen vergrössert werden, wird der dafür statisch notwendige Beton als Gewände geformt. Dabei nimmt er die Form und Farbe der bestehenden Sandsteingewände auf. Die Wahl der Form und Farbe der neuen Betonelemente zitiert stets ein bestehendes konstruktives Element des Bestands, ohne es nachzuahmen. Gleichzeitig fügt sich das Neue subtil ein, ohne sich offensichtlich als solches zu exponieren.
Conception architecturale et spatiale
Alte Materialien und Geometrien verschmelzen mit den neuen zu einem harmonischen Ganzen. Die neuen Betontreppenkerne sind wie eingegossen in die bestehende Struktur, ähnlich einem ausgemeisselten Sandstein. Die neuen Plaza-Treppen entfalten sich in einer dreigeschossigen Halle und bieten verschiedene Sitzstufen und Bänke. Dabei lehnt sich die geschliffene Oberfläche einerseits an die alten Sandsteinbeläge im Gebäude und andererseits an den später eingebauten Gussasphalt an.
Structure soigneusement conçue
Gestaltung, Nutzung und statische Anforderungen wurden kombiniert, um den effizienten Einsatz von Stahlbeton zu ermöglichen. Wo es die neuen Nutzungen zuliessen, wurden bestehende Holzbalken erhalten und verstärkt. In grösseren Räumen wie dem Saal und der Plaza kamen vorgespannte, vorfabrizierte Betondecken zum Einsatz. Im Moscheeraum wurde eine Holz-Beton-Verbunddecke verwendet. Die neuen Betontreppenhäuser tragen zur Erdbebenertüchtigung des Gebäudes bei.
Durabilité globale
Der Umbau der Kaserne zu einem neuen Kulturzentrum ist zu einem Vorbild für zirkuläre Architektur und Re-Use geworden. Das Projekt schafft einen neuen öffentlichen Ort und Treffpunkt, der das soziale Leben im Quartier und in der gesamten Stadt nachhaltig bereichert. Durch den Erhalt eines großen Teils der Bausubstanz wird nicht nur die historische Identität des Gebäudes gewahrt und ihm neues Leben eingehaucht, sondern auch der ökologische Fussabdrucks des Umbaus erheblich reduziert.

Caractéristiques

Lieu
Basel
Catégorie d'ouvrage (SIA 102)
Culture et vie sociale
Type de tâche
Transformation
Type de procédure
Concours
Type de concours
Concours ouvert
Coût de construction en CHF (SIA 416)
46 Mio. inkl. Mwst. und Honorare
Surface de plancher en m² (SIA 416)
9'394 m2
Planification
2014 → 2020
Réalisation
2020 → 2022
Année de mise en service
2022

Intervenants

Directions des travaux
Génie civil
Maître d'ouvrage
Technique du bâtiment
Technique du bâtiment
Ingénierie acoustique
Autre
Technique du bâtiment
Treuthardt Haustechnik
Conception électrique
Physique du bâtiment
Autre
Autre
Conception de façade
Autre
Construction béton