Erweiterung Schreinerei MZU Uitikon, Zürich

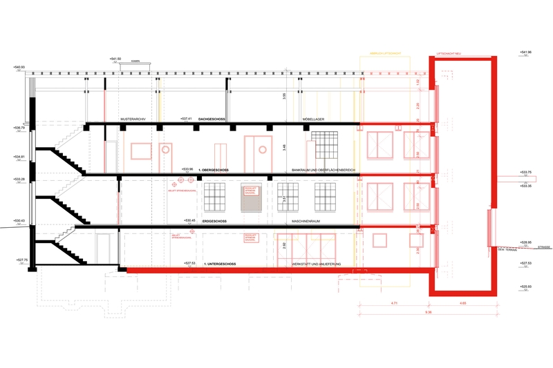
Das dreigeschossige Schreinereigebäude aus dem Jahre 1955 wurde unter laufendem Betrieb instandgesetzt und erweitert. Damit den Anforderungen an die betriebliche Sicherheit und an den Bildungsplan für Lernende im Schreinereigewerbe weiterhin Rechnung getragen werden kann, waren tiefgreifende Baumassnahmen nötig: Die gesamte Haustechnik wurde erneuert, Brandschutzmassnahmen getroffen, eine neue Späneabsauganlage sowie ein neuer Lift eingebaut und durch Änderung des Produktionslayouts der gesamte Betrieb optimiert. Der Erweiterungsbau ist von den funktionalen und betrieblichen Aspekten der Bauaufgabe bestimmt: Vorfabrizierte Thermowände in Sichtbeton ermöglichten eine kurze Bauzeit und bestimmen den konstruktiven Ausdruck des Anbaus. Die Sichtbetonerweiterung nimmt Bezug auf die Gliederung des bestehenden Gebäudes und baut dieses in selbstverständliche Art und Weise weiter.



















