Schulcampus Bümpliz

1383
Froelich & Hsu Architekten ETH_BSA_SIA AG
Enseignement, formation, recherche
Nouvelle construction
Concours
Concours ouvert

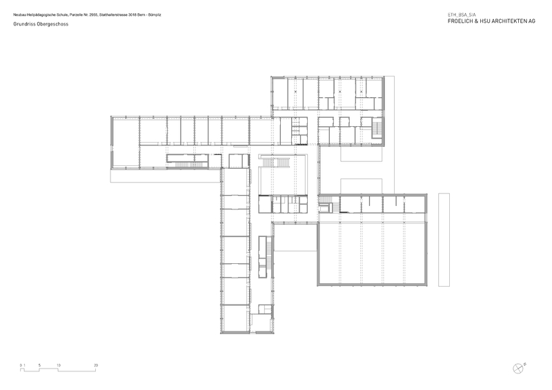
Das pavillonartige Schulhaus übernimmt die Orthogonalität der benachbarten Schulareale „Statthalter“ und „Bümpliz“ mit dem Ziel, ein zusammenhängendes System typologisch und funktional verwandter Bauwerke zu schaffen.
Der üppige Baumbestand wurde geschickt in die Gestaltung des Schulareals integriert und verleiht diesem Ort eine ganz besondere Atmosphäre. Er spricht die Sinne auf vielfältige Weise an und vermittelt eine eigenständige, zugleich positive Identität. In diesem Raumkonzept ist das Programm der «Besondere Volksschule Bern» untergebracht. Mit einem klaren Fokus auf Inklusion bietet sie für Schülerinnen und Schüler mit Beeinträchtigungen aus der Stadt und Region Bern ein individuelles und unterstützendes Lernumfeld, das sowohl den funktionalen Anforderungen als auch den vielfältigen Bedürfnissen der Kinder gerecht wird. Ergänzt wird diese Nutzung durch eine Quartierküche und eine Turnhalle. Der vielseitig gestaltete Freiraum mit freigelegtem Stadtbach ist öffentlich zugänglich

Copyright des images: Walter Mair, Photography

Réflexions sur la proposition de projet

Utilisation efficace du béton
> 50% an RC-Beton im Untergeschoss und als Füll- und Überbeton der Halbfertigelemente. Ansonsten konsequente Anwendung von leistungsfähigen vorfabrizierten Vollfertigbetonelementen als stabförmiges Tragwerk mit optimierter Masse. Aufgrund der guten Oberflächenbeschaffenheit und Präzision der Betonelemente konnte auf zusätzliche Materialien und Oberflächenvergütungen verzichtet werden. Der additive „Baukasten“ schafft eine prägende aber insbesondere auch eine verträgliche Architektur für den Ort.
Innovations spécifiques aux matériaux
Die Kombination von Halbfertig- und Vollfertigelementen erlaubt es, einerseits die Effizienz und Geschwindigkeit der Vollfertigelemente zu nutzen und gleichzeitig die Anpassungsfähigkeit und Kosteneffizienz der Halbfertigelemente zu wahren. Diese Mischung ermöglicht eine schnelle, effiziente Bauweise bei gleichzeitig hoher Flexibilität und Anpassungsfähigkeit an das Design und die funktionalen Anforderungen eines Projekts.
Approches interdisciplinaires
Die enge Zusammenarbeit zwischen Architekten und Bauingenieuren war von Anfang an entscheidend für den Projekterfolg. Frühzeitig wurde eine umfassende Koordination sämtlicher Gewerke lanciert, um die komplexen Anforderungen effizient zu erfüllen. Dabei wurden sowohl gestalterische als auch technische Aspekte berücksichtigt, um eine harmonische und funktionale Lösung zu finden.
Conception adaptée au site
Unter einem grossen Shed-Dach werden alle Nutzungen vereint, mit enger Verschränkung von Innen- und Aussenraum. Die Kreuzfigur gliedert das Areal in 4 Bereiche: Zugang und Anlieferung, Pausenhof mit Sportfeld, Schulgarten und naturnaher Bereich Stadtbach. Mit Baumbestand und Wildhecke entstehen klar gefasste, atmosphärisch unterschiedliche Aussenbereiche. Ein Natursteinweg schafft über die Statthalterstrasse hinweg eine direkte Verbindung zwischen den Schulen und bildet einen Schul-Campus.
Conception architecturale et spatiale
Die Kreuzfigur des Schulhauses spiegelt die 4 Funktionsbereiche: Unterrichtszimmer, Spezialräume, Werken / Schulküche, Turnen, die sich um die zentrale Halle gruppieren. Diese stehen in enger räumlicher und funktionaler Beziehung zu den angrenzenden Freiräumen und sorgen für eine übersichtliche und gute Orientierung. Die Halle, als zweigeschossiger Multifunktionsraum, ist das «Herz» der Schule: Veranstaltungsraum, Spiel-und Aufenthaltsbereich sowie Kommunikations- und Begegnungszone.
Structure soigneusement conçue
Einzelne stabförmige Elemente werden mittels Vergusstaschen zu einem ausgesteiften Tragsystem verbunden und schaffen durch unterschiedliche Ausfachungsvarianten einen modularen ‚Baukasten‘ mit flexibel gestaltbaren Raumstrukturen. Innerhalb der 7 Meter tiefen, durchgehenden Raumschicht werden 25-, 50- oder 75 m²-Einheiten untergebracht, was eine hohe Nutzungsneutralität ermöglicht. Eine differenzierte Materialisierung sorgt für zurückhaltende, aber charaktervolle Räume.
Durabilité globale
Durch die Kombination von Vollfertig- und Halbfertigelementen aus Beton wird der Materialverbrauch optimiert, der Energieaufwand gesenkt, die Lebensdauer der Bauteile verlängert und die Anpassungsfähigkeit des Gebäudes gesteigert. So werden Ressourcen effizient genutzt, die Bauzeit verkürzt und die Umweltbelastung reduziert. Die Bauteiltrennung fördert Flexibilität und Wartungsfreundlichkeit. Das Schulgebäude wurde nach dem Minergie-P-Eco-Standard erbaut und zertifiziert.

Caractéristiques

Lieu
Bern, Bümpliz Süd
Catégorie d'ouvrage (SIA 102)
Enseignement, formation, recherche
Type de tâche
Nouvelle construction
Type de procédure
Concours
Type de concours
Concours ouvert
Coût de construction en CHF (SIA 416)
25'117'000
Surface de plancher en m² (SIA 416)
5'423
Planification
2018 → 2022
Réalisation
2021 → 2023
Année de mise en service
2023

Intervenants