Ampliamento ospedale di Mendrisio

Der Erweiterungsbau des Spitals von Mendrisio fügt sich in einen landschaftlich wertvollen Kontext ein, in einem vornehmen Gebiet der Gemeinde, das sich direkt an das historische Zentrum anlehnt. Das Areal ist durch die Präsenz von Gebäuden aus dem 19. Jahrhundert geprägt, die in prachtvolle Gärten eingebettet sind. Der Stadtteil hat sich rund um institutionelle Gebäude und Schulen verschiedener Stufen entwickelt, darunter die Accademia di Architettura.
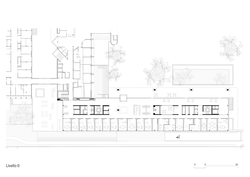
Das neue Gebäude begrenzt den Raum nach Süden mit einer Volumetrie, die die Höhen der umliegenden Bauten respektiert und somit den bestehenden Hauptkörper, der als Ausnahme höher ist, innerhalb des öffentlichen Parks herausragen lässt.
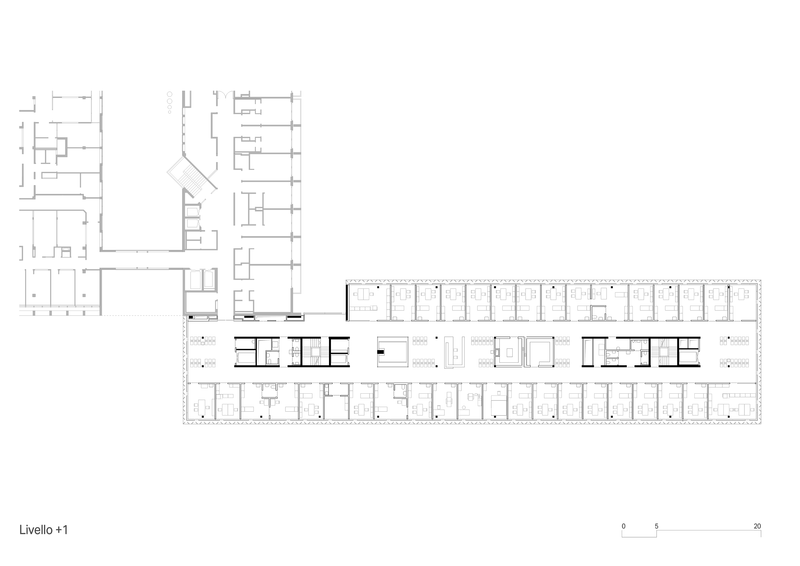
Die Erweiterung besteht aus einer Ebene für poststationäre Pflege auf der oberen Etage und aus vier Ebenen mit ambulanten Bereichen mit verschiedenen Spezialabteilungen.
Die Doppelkorridor-Typologie, die Verteilung und die Fassaden reagieren flexibel auf die verschiedenen funktionellen Anforderungen.


















Réflexions sur la proposition de projet
Das geeignetste Material, um eine lange Lebensdauer und qualitativ hochwertige ästhetische Erscheinung zu gewährleisten, ist Beton.
In diesem Bereich ermöglicht die Definition einer einfachen primären Struktur aus Beton allen an der Bauausführung beteiligten Fachspezialisten, flexible und innovative Lösungen zu finden.
Die Fassadenlösung verleiht dem Gebäude eine klare Identität im Dialog mit dem bestehenden modernistischen Krankenhaus. Die Wiederholung von gedrehten Aluminiumelementen hebt die Raumaufteilung von aussen auf und ermöglicht einen offenen Blick auf die Stadt während gleichzeitig Diskretion gewahrt bleibt.
Die hohe Flexibilität der Konstruktion und der Fassade ermöglichen eine langfristige Nutzung unter Berücksichtigung ökologischer, wirtschaftlicher und sozialer Nachhaltigkeitskriterien.