Kantonsspital Graubünden, Chur (H1)

1356
Staufer & Hasler Architekten AG
+
Staufer & Hasler Architekten AG
+
Staufer & Hasler Architekten AG
Santé et institutions sociales
Nouvelle construction
Concours
Concours ouvert

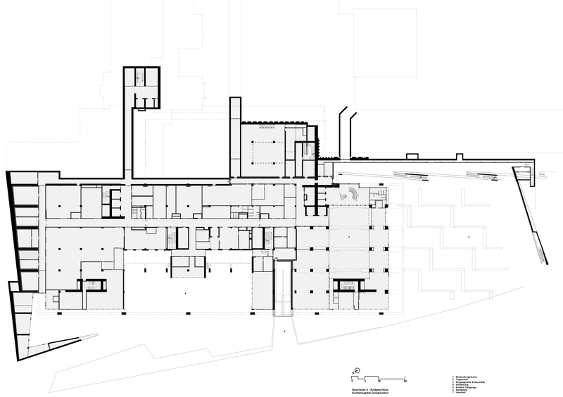
Die Gesamtanlage vereint vielfältige Nutzungen – von Empfang, Cafeteria und Mensa bis hin zu spezialisierten Behandlungs- und OP-Bereichen – harmonisch auf zwölf Ebenen in Hanglage. Durchgehende Geschossflächen ermöglichen eine kompakte Grundrissorganisation und flexible Nutzungsmöglichkeiten. Die Anlage integriert großzügige Außenräume in das städtebauliche Gefüge über Chur. Besonders hervorzuheben ist der neue Spitalplatz an der Loëstrasse, der als Bindeglied zwischen Quartier und Spitalareal eine urbane Qualität schafft. Im Innenraum entsteht eine sorgfältig abgestimmte Dramaturgie aus unterschiedlichen Raumvolumina, welche die Orientierung erleichtert, die breiten Anforderungen der Nutzergruppen erfüllt und durch punktuelle Sichtachsen sowie natürliche Belichtung eine angenehme Atmosphäre in Behandlungs- und Büroräumen schafft. Die erste Bauetappe wurde von 2014 bis 2020 realisiert, die Fertigstellung der zweiten Etappe ist für 2026 geplant.

Copyright des images: Ralph Feiner / feinerfotografie.ch - Andrea Helbling, Arazebra Zürich - Roland Bernath Zürich

Réflexions sur la proposition de projet

Utilisation efficace du béton
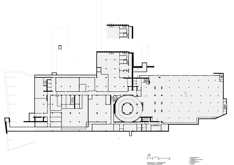
Die geforderte Flexibilität mit kompakten und funktionalen Grundrissen auf grosszügigen Geschossflächen stellt hohe Anforderungen an den Baustoff. Die hochinstallierten Räume und Spezialfunktionen, einschließlich medizinischer Geräte und Heli-Landeplätzen auf dem Dach, führen zu punktuell sehr hohen Lasten, die ideal durch Stahlbeton aufgenommen werden können. Um die Bauzeit zu verkürzen, wurden, wo möglich, Fertigteile verwendet, ohne die bauliche Qualität und Funktionalität zu beeinträchtigen.
Innovations spécifiques aux matériaux
Die vielfältigen Anforderungen der Nutzungen erforderten massgeschneiderte Lösungen mit Beton: Barytbeton zur Reduzierung der Strahlendurchlässigkeit, schallabsorbierende Betonmischungen zur Minderung des Lärms von den Landeplätzen und vorgespannte Betonkonstruktionen zur Gewährleistung der Gebäudeintegrität während der Bauetappierung. Die Zuschlagsstoffe wurden aus dem naheliegenden Rhein bezogen und das gesamte Areal an das Fernwärmenetz angeschlossen, was zum öffentlichen Wohl beiträgt.
Approches interdisciplinaires
Im Haus H sind neben Operations- und Behandlungsräumen sowie Büros auch eine Grossküche, Cafeteria, Mensa, Labor-, Pharmazie- und Lagerbereiche, eine Rohrpostanlage und die Technikzentrale untergebracht. Diese Vielfalt an Anforderungen erforderte einen strukturierten, mehrstufigen Planungsprozess. Dabei wurden die Bedürfnisse aller Nutzergruppen des Spitals aufgenommen und in enger Zusammenarbeit mit über 20 Fachplanerteams massgeschneiderte Lösungen entwickelt und umgesetzt.
Conception adaptée au site
Der Ursprungsbau von 1941 wurde kontinuierlich erweitert und prägte mit der Lage des Haupteingangs die Struktur der Anlage. Der Neubau veränderte dieses Prinzip: Haus H erfüllt aktuellste Anforderungen und repräsentiert das neue, offene Gesamtkonzept des Spitalareals. Der Spitalplatz ist in seinen Dimensionen auf den Neubau abgestimmt, verbindet das Spitalareal mit dem Quartier. Der Haupteingang wurde um fünf Etagen auf das städtische Niveau verlegt und integriert sich harmonisch in das Gefüge.
Conception architecturale et spatiale
Das Gebäude H ist das zentrale Element. Es beherbergt die wichtigsten Abteilungen auf Geschossebenen mit Abmessungen von 136x48m, was kompakte Grundrissorganisationen und flexible Nutzungsoptionen ermöglicht. Ebene 5 gewährleistet so durch die direkte Verbindung von Notaufnahme, OP, Tagesklinik und Intensivstation eine optimale funktionale Abstimmung. Die Modulation der Raumhöhen, der Sichtachsen ins Freie und dem Innenhof als zentraler Erholungs- und Lichtraum, tragen zum Wohlbefinden aller bei
Structure soigneusement conçue
Die weitgespannten Tragwerke schaffen im Sockelgeschoss grosse, stützenfreie Bereiche für technische Einrichtungen und logistische Prozesse. Diese Konstruktionen prägen den Charakter des Gebäudes: In den Innenhöfen sind die schräg angeordneten Stützen sichtbar und schaffen bis zu 16m tiefe, stützenfreie Raumzonen; im EG ist der Haupteingang hinter die Fassadenstruktur zurückgesetzt und kreiert die einladende Vorzone. Die symmetrische Betonstruktur sichert die ausgezeichnete Erdbebenstabilität.
Durabilité globale
Die robuste Beton-Grundstruktur mit großen Spannweiten und dem modularen Tragwerk in den Behandlungstrakten verleiht dem Spital hohe Anpassungsfähigkeit. Dies ermöglicht flexible Umbaumaßnahmen und trägt zu einem nachhaltigen Lebenszyklus bei. Die Tragstruktur bietet höchste Multifunktionalität und erfüllt medizintechnische Anforderungen. Dadurch wird das gesamte Spitalareal, einschließlich Bestandsbauten, aufgewertet und die langfristige Attraktivität und Sicherheit des Standorts gewährleistet.

Caractéristiques

Lieu
Chur
Catégorie d'ouvrage (SIA 102)
Santé et institutions sociales
Type de tâche
Nouvelle construction
Type de procédure
Concours
Type de concours
Concours ouvert
Coût de construction en CHF (SIA 416)
337'957'900
Surface de plancher en m² (SIA 416)
72'677
Planification
2014 → 2020
Réalisation
→ 2020
Année de mise en service
2020