Immeuble 9 plateaux

1333
Atelier Bonnet Architectes
Habitat
Nouvelle construction
Concours
Concours sur invitation

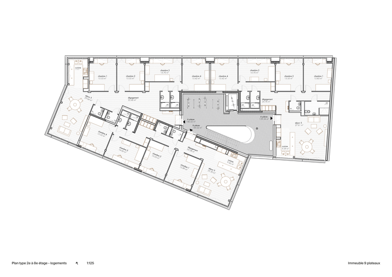
Comment proposer un mode de vie propre aux logements d’étudiants basé sur la recherche d’un type d’assemblage des pièces dans une forme triangulaire irrégulière, issue des contraintes réglementaires et morphologiques du site ?
Dans un contexte à priori inconfortable pour envisager du logement, le concours a permis de trouver le juste équilibre entre forme et densité. L’immeuble se distingue par un côté urbain sur l’avenue de Champel et un côté jardin face à l’imposant bâtiment du Centre médical universitaire. Trois appartements par étage s’organisent autour d’un cœur de distribution lumineux aux qualités hybrides : à la fois lieu de mouvements et de rencontres, stockage pour les vélos, palier couvert extérieur substitut du balcon. Le regroupement des chambres est identique pour les 3 appartements alors que la forme variée et la disposition des séjours, déterminées par les orientations favorables à la lumière et à la vue, génèrent une identité propre à chacun.

Copyright des images: Yves André

Réflexions sur la proposition de projet

Utilisation efficace du béton
Comment concevoir une architecture en continuité de la ville minérale caractéristique du centre-ville genevois ? À l’origine du projet, le désir d’une construction solide et expressive qui va se développer dans une approche sensible de la matière dans la ville, avec une façade préfabriquée.
On peut parler d’efficacité dans la mesure où l’ambition du projet s’est matérialisée dans une réalisation fidèle à son imaginaire, une rencontre entre la culture de la matière et celle de la ville.
Innovations spécifiques aux matériaux
Sans prétendre à une innovation spécifique d’un point de vue des matériaux, il s’agit de tisser un lien avec la tonalité claire et la matérialité minérale du quartier de Champel. En ce sens, la composition du béton des éléments préfabriqués apparents repose sur une attention particulière donnée à la recherche d’un mélange d’agrégats naturels sans pigment, composé d’un granulat ocre concassé local, sablé pour les bandeaux des étages courants et lisse de décoffrage pour le 1er étage et l’attique.
Approches interdisciplinaires
Des maîtres de l’ouvrage éclairés ont su entrevoir le potentiel d’un site dormant en jachère en bordure du site hospitalier. Par la conscience de l’importance de la culture du bâti, le processus de transformation du lieu a été initié par un concours d’architecture et porté par une équipe multidisciplinaire de mandataires valorisant les entreprises locales.
Ainsi, par une greffe urbaine ambitieuse, un lieu sans qualité est devenu un lieu rayonnant et ouvert sur la ville, une nouvelle adresse.
Conception adaptée au site
L’esprit étudiant du lieu est révélé au travers de ce « Flatiron » occupé par les jeunes générations dans une visibilité attractive en frange du quartier résidentiel de Champel. Son identité réside dans l’ouverture de l’immeuble sur la ville par l’activation du rez-de-chaussée et du premier étage en une extension bienvenue de la bibliothèque universitaire au contact direct de la vie de la rue.
Les premières réactions du voisinage et des usagers : « on a l’impression qu’il a toujours été là ».
Conception architecturale et spatiale
L’aspect innovant de ce projet vertical repose sur l’accueil des vélos en intimité avec l’appartement, à chaque plateau, en correspondance avec le mode de vie étudiant. Dans un contexte exigu de forme triangulaire, la typologie est développée pour donner des qualités spécifiques aux espaces de vie privée et collective des étudiants. Le regroupement de 4 étudiants par appartement est à la fois l’équilibre optimal pour la vie estudiantine et un potentiel de conversion future en logement familial.
Structure soigneusement conçue
La sollicitation des savoir-faire de l’ingénieur civil, du préfabricant et du maçon ont permis une conception structurelle optimisée reposant sur des dalles à l’épaisseur maîtrisée de 20cm, et une structure verticale hybride constituée de poteaux à l’intérieur des appartements, et de murs en séparation des appartements et délimitant le noyau distributif. Le mode constructif de la façade réside dans un assemblage hybride entre un mur sandwich et un parement dans un seul élément.
Durabilité globale
La flexibilité est un des enjeux de la durabilité. Grâce à la structure porteuse ponctuelle du bâtiment, la mixité programmatique est optimisée et l’évolution dans le temps est ouverte à d’autres usages.
Par ailleurs, les enjeux de santé pour l’habitat urbain ont été un ferment du projet : un dispositif architectural de niche acoustique performante intégrée à la table de travail des chambres côté rue ainsi que la plantation d’une petite forêt « filtre » face au centre universitaire. Un équilibre

Caractéristiques

Lieu
Avenue de Champel 15a, 15b, 15c, 1206 Genève
Catégorie d'ouvrage (SIA 102)
Habitat
Type de tâche
Nouvelle construction
Type de procédure
Concours
Type de concours
Concours sur invitation
Coût de construction en CHF (SIA 416)
17'790'000
Surface de plancher en m² (SIA 416)
5'034
Planification
2017 → 2020
Réalisation
2020 → 2023
Année de mise en service
2023

Intervenants

Directions des travaux
Génie civil
Technique du bâtiment
Architecture du paysage