Schulerweiterung Campus Moos, Rüschlikon

1307
Soppelsa Architekten GmbH
Enseignement, formation, recherche
Agrandissement
Concours
Concours sélectifs

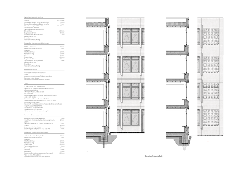
Die Erweiterung versteht sich als ein konsequentes Weiterbauen der Anlage von 1966. Der neue Trakt C wird direkt an den Trakt B angebaut. Das Thema der räumlichen Rückstaffelungen wird im Neubau weitergeführt und mit einem kopfartigen Abschluss zum Platanensaal hin akzentuiert. Die Räume der Primar- und Sekundarschule werden als doppelgeschossige Cluster-Einheiten horizontal gestapelt. Die Unterrichtsräume werden ringförmig um eine innere Halle angeordnet und von dieser her erschlossen. Eine tragende Skelettstruktur, bestehend aus Unterzügen und Stützen, strukturiert die Unterrichtsräume und erlaubt maximale Flexibilität. Der Bestand ist Ausgangspunkt und Inspiration zugleich. Die dünnen, glasfaserarmierten Betonplatten haben ihre eigene Ästhetik und wirken beinahe textil. Das Element der Perforation wird zu einem markanten Element der Fassade weiterentwickelt. Perforierte Türelemente und mittig in der Hallendecke platzierte Glasbausteinelemente setzen das Thema im Innern fort.

Copyright des images: Beat Bühler Fotografie

Réflexions sur la proposition de projet

Utilisation efficace du béton
Die Stahlbeton-Skelettstruktur mit dünnen Decken sowie Unterzügen und Stützen im Raster von 2,45 m x 7,35 m bietet nicht nur statische Stabilität, sondern auch hohe Flexibilität für zukünftige Nutzungen. Durch die Reduzierung der Betonwände auf Kerne und Fassadenecken wird eine ressourcenschonende Bauweise ermöglicht. Dies erlaubt vielseitige Nutzungsmöglichkeiten der Grundrisse – von offenen Lernlandschaften bis zu geschlossenen Raumkonzepten.
Innovations spécifiques aux matériaux
Die Schulerweiterung zeigt die Fähigkeiten des Baustoffs Beton auf. Sei es als minimal dimensionierte Skelettstruktur in Ortbeton oder in vorgefertigten Fassadenbauteilen. Bei den gelochten Platten in Faserbeton wurde ausgelotet, wie die Stabilität des dünnen Materials mit grossformatigen Perforationen gewährleistet werden kann. Erst durch die Perforation wird die Materialstärke an der Fassade spürbar; gleichzeitig führt sie zu einem schönen Lichtspiel im Gebäudeinnern.
Approches interdisciplinaires
Die Architekten führten ein Generalplanerteam über alle Projektierungsphasen. Der minimale Materialeinsatz des Baustoffs Beton konnte durch einen intensiven Austausch des Bauingenieurs mit den Gebäudetechnikplanern erreicht werden. Die perforierten Fassadenplatten und die Glasbausteinelemente mussten durch Belastungstests vorab zur Erstellung und spezielle Zulassungen (Feuerwiderstand EI60) geprüft werden, was einen frühen und intensiven Austausch mit Unternehmern und Behörden bedingte.
Conception adaptée au site
Das Thema der räumlichen Rückstaffelung wird weitergeführt. Der Anbau fungiert als verbindendes Scharnier zwischen der Anlage des Primarschulhauses und der Sekundarschule. Die gestalterischen Überlegungen orientieren sich am Bestand und interpretieren diesen neu. Das bereits im Bestand kleinformatig vorhandene Lochmuster in der Faserzementfassade wird im Neubau skaliert und in den Innenraum gezogen. Die gelochten Elemente – Wände, Türen, Fenster – erzeugen interessante Ein- und Durchblicke.
Conception architecturale et spatiale
Die Stahlbeton-Skelettstruktur prägt die unterschiedlichen Räume. Halle, Klassenzimmer und Treppenhaus erhalten dabei jeweils ihre spezifischen Ausprägungen, von den «stark durchlöcherten» Hallenwänden bis hin zur skulpturalen Treppenhausfigur in Ortbeton. Innerhalb einer klaren strukturellen Logik bereichern frei gestalterisch komponierte Elemente wie zum Beispiel die Akustikvertiefungen der Hallendecke die Raumwahrnehmung und regen zum Gedankenspiel an.
Structure soigneusement conçue
Die Tragstruktur ist ein Beispiel für effizientes und flexibles Bauen. Die dünnen Stahlbetondecken, die auf klar geometrisch angeordneten Betonunterzügen und -stützen ruhen, bieten eine hohe Tragfähigkeit bei minimalem Materialeinsatz. Diese Reduktion führt zu wirtschaftlichen Vorteilen und ermöglicht eine freie Raumgestaltung. Dank des modularen Aufbaus des Tragwerks können zukünftige Nutzungsänderungen problemlos umgesetzt werden.
Durabilité globale
Die Struktur ermöglicht eine grosse Flexibilität in der Unterteilung, da alle Raumtrennungen in Leichtbauweise erstellt werden. Die Nebenräume werden losgelöst in zwei Kernen untergebracht. Die beiden Pergolaterrassen liessen sich bei Bedarf in Unterrichtsräume umwandeln (wie in den Trakten A und B im Zuge der Sanierung bereits geschehen). Das Tragwerk wurde zudem leicht überdimensioniert, damit eine weitere Aufstockung um ein Geschoss möglich wäre.

Caractéristiques

Lieu
Säumerstrasse 26, 8803 Rüschlikon
Catégorie d'ouvrage (SIA 102)
Enseignement, formation, recherche
Type de tâche
Agrandissement
Type de procédure
Concours
Type de concours
Concours sélectifs
Coût de construction en CHF (SIA 416)
13.5 Mio
Surface de plancher en m² (SIA 416)
2’440 m2
Planification
2020 → 2022
Réalisation
2021 → 2023
Année de mise en service
2023

Intervenants

Directions des travaux
Architecture du paysage
Génie civil
Technique du bâtiment
Conception électrique
Physique du bâtiment
Ingénierie acoustique