Erweiterungsneubauten Kantonsschule Limmattal, Urdorf

1140
PENZISBETTINI. Architekten ETH/SIA GmbH
Enseignement, formation, recherche
Agrandissement
Concours
Concours ouvert

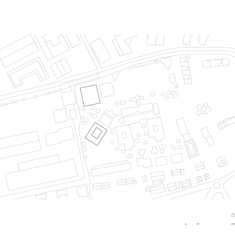
Die Erweiterungsneubauten für die Kantonsschule Limmattal (Bolliger Hönger Dubach, 1984-1986) setzen die Anreihung von funktionalen Nutzungseinheiten mit zwei neuen Trakten ähnlichen Fussabdrucks fort: im Westen mit dem Trakt E (Naturwissenschaften) und im Norden mit dem Trakt F (2 Doppelturnhallen und Aula). Die entstandene «Perlenkette» bildet ein stimmiges Areal mit kompakten Einheiten. Die anwachsende Gebäudehöhe der einzelnen Baukörper erreicht mit dem Aula- und Turnhallentrakt ihren Höhepunkt als Adressierung an der Limmattalbahn.
Die Räume der Naturwissenschaften sind in einem viergeschossigen Gebäude als flexibles Betongestell organisiert. Die Stapelung von Turnhallen und Aula generiert einen kompakten, höchstgradig effizienten Baukörper.

Typostrukturen als Grundidee: Dauerhaftigkeit und Robustheit des Tragwerks sichern langfristige Nutzung und bewahren die Identität des Gebäudes. Dies schafft ein Gleichgewicht zwischen ökonomischer Aktualität und sozialer Nachhaltigkeit.

Copyright des images: Igor Ponti, Lugano

Réflexions sur la proposition de projet

Utilisation efficace du béton
Eine Balken-Stützen-Konstruktion im Trakt E spannt bis zu 11m mit kleinstem Materialeinsatz für flexible Grundrisse. Beton sorgt für thermische Speichermasse und hervorragenden Schallschutz. Kombiniert mit nichtragenden Wänden und sichtbaren Installationen wird naturwissenschaftliche Lehre für Schüler:innen erlebbar. Vorgespannte Wandscheiben im Trakt F ermöglichen die Stapelung von drei Hallen, um den Fusabdruck zu minimieren und ein effizientes Material-Raum-Verhältnis zu erzielen.
Innovations spécifiques aux matériaux
Die Kombination von Vorfertigung und Ortbeton prägt das Projekt. Vorgefertigte Stützen und Balken sorgen für einen schnellen Baufortschritt, Ortbeton für die horizontale Aussteifung. Somit kann in Trakt E auf statisch relevante Kerne verzichtet werden. Waschbeton an den Fassaden enthüllt das Wesen des Materials mit weich ausgewaschenen Sedimentgesteinen. Der optimale Zeitpunkt für das Ausschalen wurde mit Bluetooth-Überwachung ermittelt. Fenster und Metallbrüstungen ergänzen die Struktur.
Approches interdisciplinaires
In Trakt E werden Installationen, Statik und Raumwirkung kombiniert. Die Rippendecke mit flacher Mitte ermöglicht es nicht nur, die Installationen zu verteilen, sondern auch zu ordnen und in den Raum zu integrieren. Akustische Anforderungen bestimmen die Konstruktion in Trakt F: Die Aula wird als holzige Box-in-Box vom Betontragwerk getrennt, und die plastisch modulierten Wände der Musikräume sorgen mit minimalem Ausbau für die gewünschte Raumakustik.
Conception adaptée au site
Die Neubauten erweitern den Bestand mit dem naturwissenschaftlichen Klassentrakt (E) und dem Hallentrakt (F) mit Sport und Musik. Trakt F bildet eine neue Adresse an der Limmattalbahn, während Baumdächer zwischen Gebäuden und Umgebung vermitteln. Analog zum Bestand sind die Neubauten strukturell konzipiert, und ihre Logik wird in den Fassaden abgebildet. Dieser spezifische Ausdruck, zusammen mit ansteigenden Gebäudehöhen, vermittelt zwischen den umliegenden Wohnquartieren und der Gewerbezone.
Conception architecturale et spatiale
Als «Typostruktur» definiert das Tragwerk die Raumstruktur: die Rippendecke (E) erlaubt die flexible und spezifische Gestaltung der Räume mit nichtragenden Wänden. Sichtbare Installationen, vom Tragwerk geordnet, als Schmuck des Rohbaus, werden Bestandteil des Raumes. Die Mitte der Geschosse kann frei bespielt oder als offene Sammlung (Schaulager) genutz werden. Die Hallen (F) entfalten sich innerhalb der Rippenstruktur und werden gestapelt, für möglichst effiziente Volumetrie und Statik.
Structure soigneusement conçue
Die Trakte werden konstruktiv unterschiedlich behandelt, zeigen sich jedoch einheitlich im Ausdruck. Vorfabrizierte Stabwerke (Trakt E) mit Ortbeton-Stirnwänden und Brüstungen ermöglichen es, auf stabilisierende Kerne zu verzichten. In Trakt F prägt eine monolithische Konstruktion die Hallen, bei der die gezielte Vorspannung von Wänden und Trägern das Tragwerk optimiert. Mit der 90° Drehung der Aula wird die Stapelung von drei Halle als konstruktive Meisterleistung möglich.
Durabilité globale
Das integrale Verständnis von Raum und Tragwerk in Form einer „Typostruktur“ fördert die Nachhaltigkeit. Es reduziert die Tragmasse (Material- und CO₂-Effizienz), erhöht die Lebensdauer (Trennung von Tragwerk und nichttragenden Wänden) und minimiert das Volumen (Kombination von Rippen und Installationen, gezielte Vorspannung). 50% des Baumaterials bestehen aus RC-Beton. Zudem wird die Bodenressource durch die Verdichtung eines urbanen Areals geschont.

Caractéristiques

Lieu
Urdorf (ZH)
Catégorie d'ouvrage (SIA 102)
Enseignement, formation, recherche
Type de tâche
Agrandissement
Type de procédure
Concours
Type de concours
Concours ouvert
Coût de construction en CHF (SIA 416)
80'000'000
Surface de plancher en m² (SIA 416)
14'000
Planification
2016 → 2023
Réalisation
2021 → 2024
Année de mise en service
2024