Résidence Couchirard

1364
O. Rochat Architectes sàrl
+
Atelier Arthys
Wohnen
Umbau
Direktauftrag

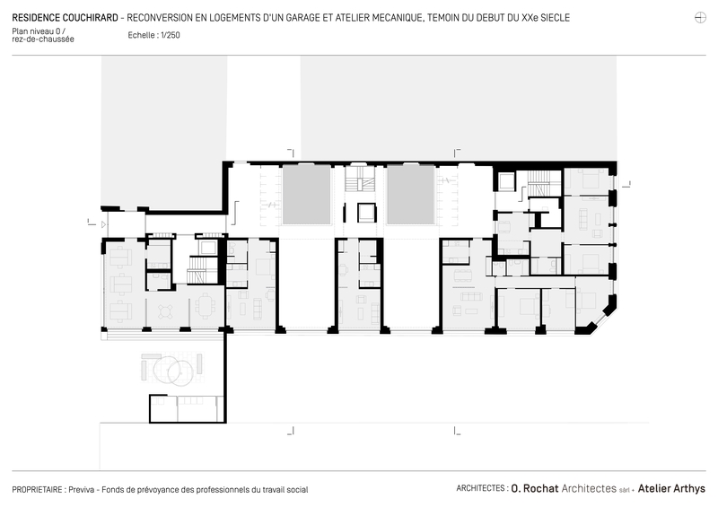
Insérer des logements dans une halle de 18 m de profondeur mono-orientée repose sur une approche simple : densifier tout en maintenant l’espace aérien. Plutôt qu’une «boîte dans la boîte», le projet privilégie des inserts transversaux occupant trois travées, libérant deux autres. Cette organisation en cinq modules -II 0 II 0 II- équilibre les volumes et permet d’ouvrir des jours latéraux sous la toiture.
Deux patios s’insèrent dans les travées libres, apportant lumière et air aux logements éloignés de la façade ouverte. Ce geste introduit des typologies traversantes, exploitant pleinement les surfaces disponibles et maximisant la densité. Les logements cohabitent avec deux espaces libres stratégiques, pensés pour préserver le patrimoine.
Le béton originel des façades de 1913 est conservé dans la partie historique, tandis que les façades des deux deux nouvelles tours, également en béton, sont réalisés en préfacation foraine, enrichissant le dialogue entre patrimoine et contemporanéité.

Bildrechte: Leo Fabrizio

Überlegungen zum Projektantrag

Sinnvoller Einsatz von Beton
Lors de l’intervention contemporaine, il a s’agit de mettre en œuvre différentes modulations du béton adaptées aux multiples typologies architecturales et structurales de mise en œuvre héritées du bâtiment historique. Les pavillons de tête surélevés et construits apportent les renforcements nécedsaires à la sécurité sismique de l’ensemble, sans nécessiter de renfort particuliers de la strucuture existante patrimoniale qui ne seraient pas à l’usage de la conception architecturale.
Materialspezifische Innovationen
Le béton blanc a été choisi pour établir un dialogue avec la teinte ivoire des façades d’origine autrefois agrémentées de faux-joints rouges typiques en 1913. La mise en œuvre d’éléments de façade préfabriqués a été l’opportunité de développer des joints pleins, contraires à une préfabrication classique par joints tuiles, teintés et étanches qui réalisent en 2023 ce que les façades historique feiganaient en 1913. Un dialogue s’établit entre les varaitions constructives des différentes époques.
Interdisziplinäre Ansätze
Pour répondre aux difficultés de mise en œuvre d’un béton apparent blanc en appuis sur des façades historiques, une concertation entre entreprise de maçonnerie, ingénieur civil et architecte a conduit à repenser les modalités de mise en œuvre, amenant à la solution mixte de préfabrication foraine adaptée aux dimensions de la halle industrielle d’origine et à la volonté de dialogue entre le neuf et le patrimonial. La solution trouvé a satisfait à toutes les préoccupations spécifiques de chacun.
Ortsspezifische Gestaltung
Un enjeu majeur a été de construire de manière non intrusive sous un toit. La réponse réside dans l’utilisation d’éléments modulaires de charpente métallique avec inserts de brique ciment qui répondent aux bétons apparents historiques.
Le béton et le ciment apparaissent sous plusieurs formes qui magnifient l’ensemble minéral : les briques phoniques répondant aux carreaux de ciments produits spécifiquement, la mise en scène des fermes en béton et de la strucuture historique type Hennebique.
Gestalterisch-räumliche Konzeption
L’utilisation du béton dans ce projet se distingue par une réinterprétation contemporaine des textures des baies. Les façades mêlent différentes finitions : le béton lisse pour les surfaces principales, associé à des parties bouchardées qui répliquent l’effet des contrecœurs historiques. Les tablettes proéminentes rappellent la composition verticale des baies d’origine tout en apportant une touche moderne, soulignant le dialogue entre l’architecture historique et l’intervention contemporaine.
Durchdachtes Tragwerk
L’expression des façades repose sur une mise en œuvre mixte qui allie des éléments verticaux préfabriqués dans la halle historique et avec des éléments transversaux de faible hauteur coulés en place qui assurent la stabilité de l’ensemble. Ce système a été conçu pour surélever les façades historiques de maçonnerie sans recourir a des appuis de coffrages périlleux à mettre en œuvre sur l’existant et éviter les risques de foramtion de nids de gravier dans les faces visibes de ces façades porteuses
Umfassende Nachhaltigkeit
Cette réalisation s’inscrit dans un concept de durabilité par le choix d’une transformation ingénieuse plutôt que d’opérer une délmolition-reconstruction pour insérer un programme exigent de logement tout en maintenant l’esprit du lieu. Basé sur le système Hennebique, les dalles des planchers et de la toiture ont été renforcées par les dalles de compressions pour continuer à carractériser de leurs rythmes les superbes grands espaces ouverts de la halle et les nouveaux logment qui s’y insèrent.

Eigenschaften

Ort
Lausanne
Baukategorie (SIA 102)
Wohnen
Art der Aufgabe
Umbau
Art des Verfahrens
Direktauftrag
Baukosten in CHF (SIA 416)
15.1 mio CHF
Geschossfläche in m² (SIA 416)
4'820
Planung
2015 → 2020
Fertigstellung
2020 → 2022
Inbetriebnahme
2022

Projektbeteiligte

Architektur
Architektur
Atelier Arthys
Bauingenieurwesen
Bauherrschaft
HLKS-Planung
Restaurationsarbeiten
Akustikplanung
Andere